Supa IGA given the Warwick green light

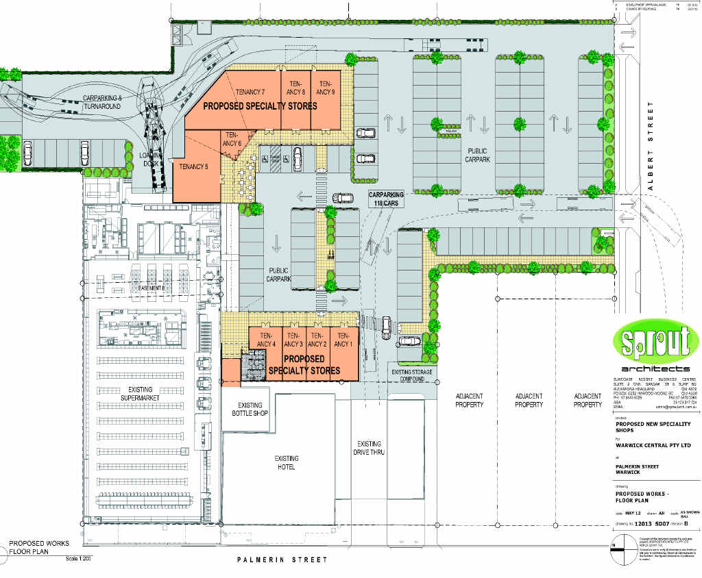
In coming months Warwick will see nine new specialty stores developed at Supa IGA Warwick.
In coming months Warwick will see nine new specialty stores developed at Supa IGA Warwick. Contributed

CONSTRUCTION of the multi-million dollar expansion at Supa IGA Warwick is set to begin.

The development allows for about 820sq m of specialty shops to help complete the complex, hopefully attracting cafes and other eateries to create dozens of new jobs.

The proposal was lodged by Warwick Central Pty Ltd late last year and approval was given this week by Southern Downs Regional Council.

Powercat Developments director Stephen Kay said they were extremely pleased construction could begin.

"We've already got a number of interested parties and will continue to seek a good mix of tenants," he said.

"While negotiations have progressed it was difficult to get a commitment before

approval.

"Now that we've got approval we will begin to sign tenants up and progress forward."

Mr Kay said it was natural the complex would expand.

"We want to offer shoppers a wide range of stores and services," he said.

"We hope to have a coffee shop and take-away outlets."

He said the construction of the new complex would also create more jobs for the local economy.

"For the project we are hoping to employ various local contractors," he said.

Mr Kay said during the construction stage they would ensure trading and access to Supa IGA Warwick was not affected.

Powercat Developments hopes for construction to start in the next couple of months with completion scheduled for early next year.

The proposal for the expansion was approved by delegated authority, which meant it was handled by council officers and didn't need to go to a council meeting.

SDRC Planning Services manager Annette Doherty said development was in accordance with the Southern Downs Planning Scheme.

She said because of the position and the zone in which the site was located, the proposal did not have to undergo a public notification stage.

Councillor Neil Meiklejohn said he was glad to see the application approved.

"I'm looking forward to seeing suitable tenants take leases," he said.

"I'm wishing the developers all the best in what seems to be tough times. It's great to see locals being confident enough to invest locally."

Cr Meiklejohn said he hopes the new development will be as successful as Supa IGA Warwick.

Powercat Developments Pty Ltd is based in Stanthorpe and was also the developer of the original store.

The new expansion will be made on property already owned by Warwick Central Pty Ltd, using the existing car park and a spare block of land behind the existing loading dock which will be converted to extra parking.

The plans for the development show nine new specialty stores and also a toilet block.



WARNING: Hail, heavy rain and winds to lash Warwick

Premium Content WARNING: Hail, heavy rain and winds to lash Warwick

Wild weather is predicted to continue well into this afternoon.

Killarney’s fight to save beloved health service

Premium Content Killarney’s fight to save beloved health service

KMAC has turned to crowdfunding after unparalleled stressors in 2020. FIND OUT HOW...

500 shoppers to hit Warwick in Buy From The Bush bus trip

Premium Content 500 shoppers to hit Warwick in Buy From The Bush bus trip

Their only goal is to spend cash - and lots of it - on the Southern Downs.